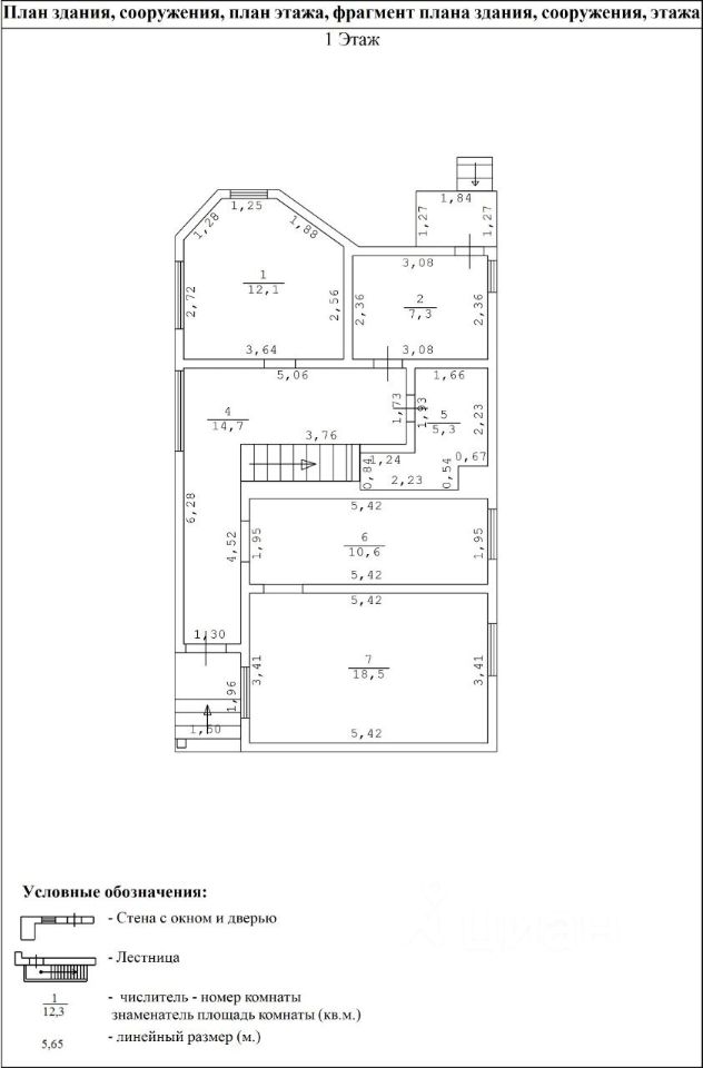
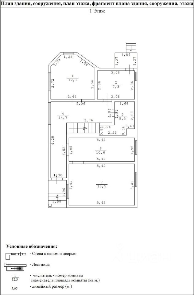
В продаже дом, полностью готовый к проживанию, можно сразу заехать с вещами и жить. Один из плюсов дома- оборудованы 2 кухни, удобно, когда в семье 2 поколения.
В центре дома (кухня -гостиная- ванна) зашит сруб 60 метров -долго держит тепло.
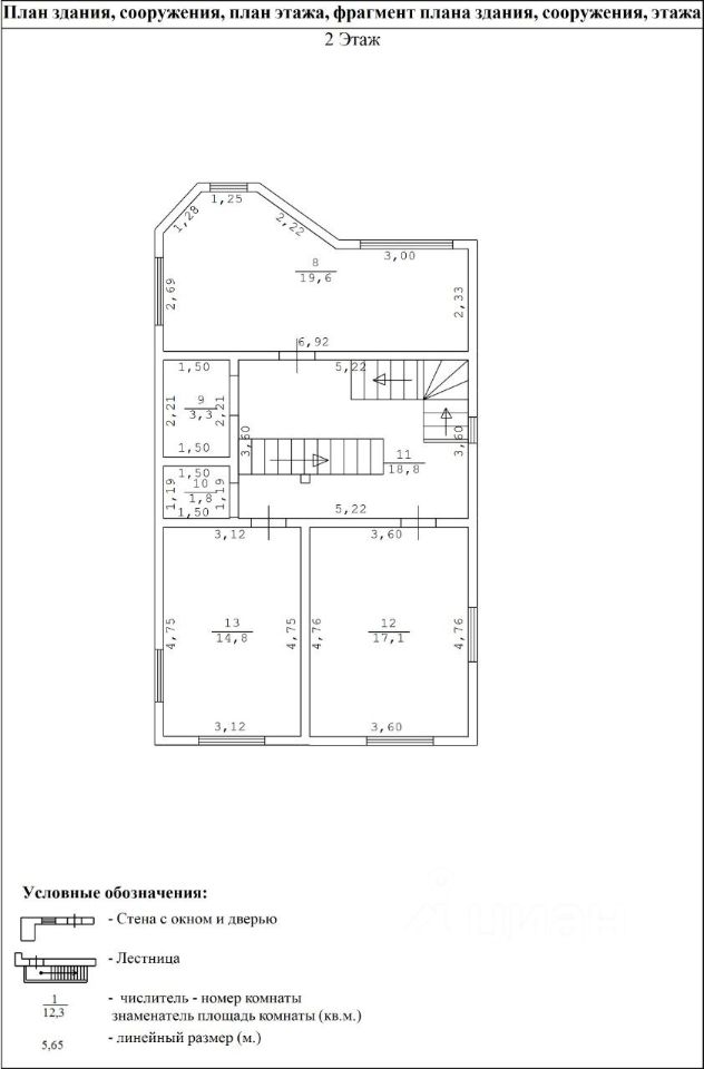
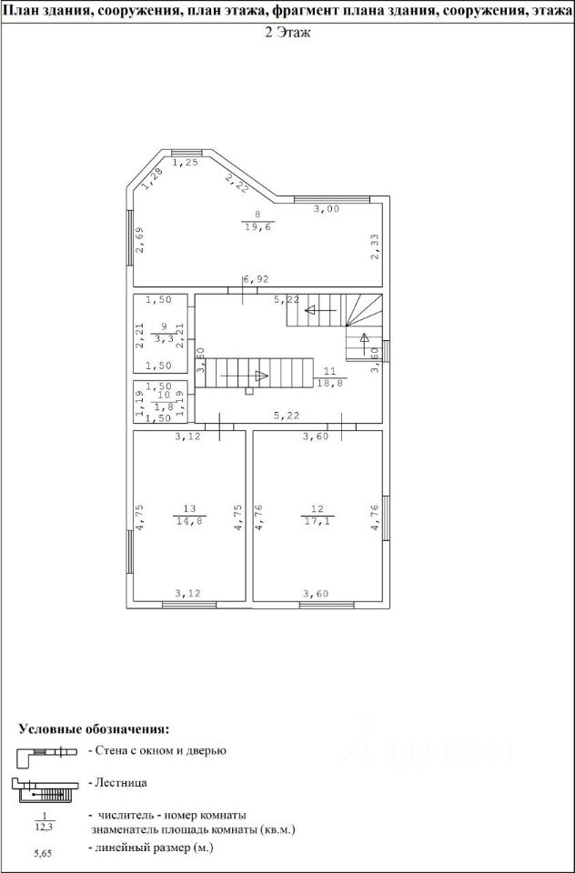
на 2 этаже была запланирована терасса - выход из комнаты на кровлю 40 метров.
Членские взносы - всего 1000 р.в месяц.
Многие соседи живут постоянно, можно оформить постоянную прописку, заведение магистрального газа в дом в процессе,
отдельно на участке 2 этажный теплый гараж с местерской.
Поможем покупателю с одобрением дома в ипотеку. Маткап также принимается.
Просмотры - оперативно.
(Возможно увеличить участок на 2 сотки, +2 млн к стоимости)
Рассмотрим обмен на квартиру!
































