Если цена в объявлении изменится, мы сразу сообщим вам об этом на электронную почту.
Нажимая «Подписаться», вы соглашаетесь с правилами.
продам 2-к, 8 Марта, 5916 000 000 ₽
7 фев
Дата публикации объявления
Обн. сегодня
Дата обновления объявления
2
Количество просмотров (+ просмотры за сегодня)
Спецпредложение
Турбо x8
258 065 ₽/м²
Чистая продажа
Термин "Чистая продажа" означает, что в квартире никто не прописан или
есть куда выписаться и вывезти вещи. Это лучший вариант для покупателя.
Вероятность срыва сделки минимальна.
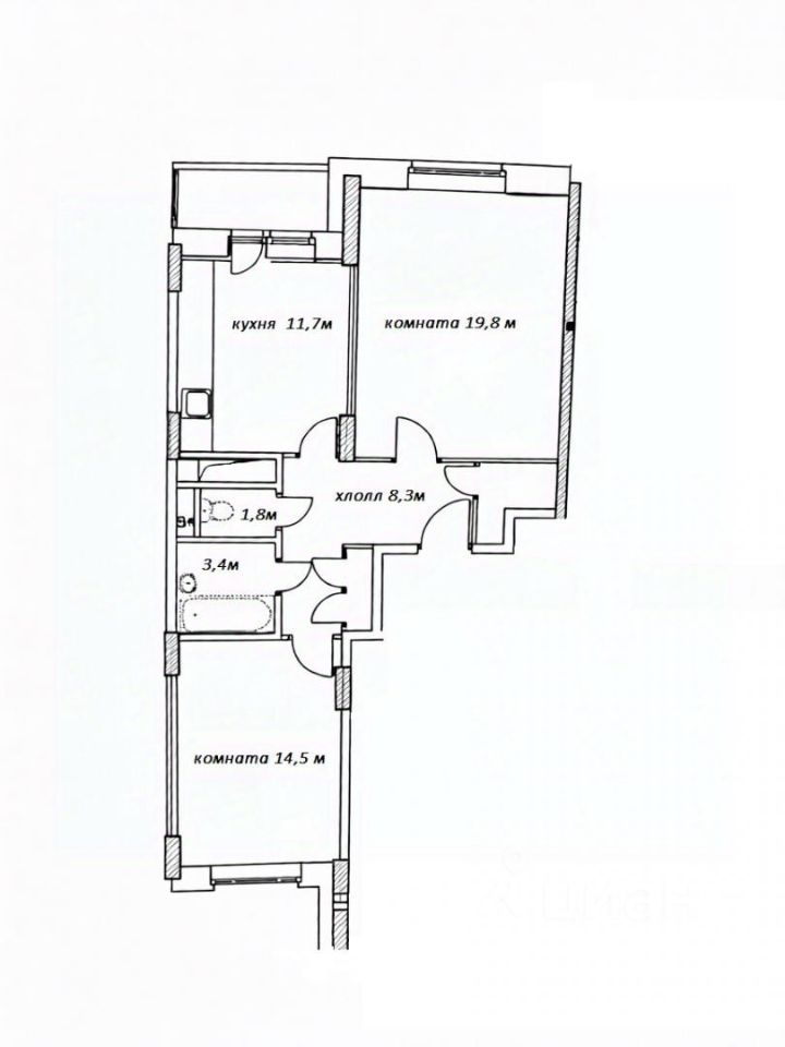
Просторная красивая двухкомнатная квартира в современном монолитном доме 2011 года! Удачная планировка Общая площадь с учетом летних помещений 64 кв.м., кухня 11,7 метров с выходом на балкон!
Полностью обновленная квартира с замененной сантехникой, электрикой и стеклопакетами на балконе.
Тепло в любое время года благодаря системе ''теплый пол'' в санузле и на балконе.
Квартира оснащена мебелью, что позволит вам заселиться и жить.
Развитая инфраструктура! Все необходимое для комфортной жизни находится в шаговой доступности: детские сады, школы, разнообразные магазины и сервисы.
Прекрасная транспортная доступность!
Данная сделка застрахована Ресо-гарантия!
Просторная красивая двухкомнатная квартира в современном монолитном доме 2011 года! Удачная планировка Общая площадь с учетом летних помещений 64 кв.м., кухня 11,7 метров с выходом на балкон!
Полностью обновленная квартира с замененной сантехникой, электрикой и стеклопакетами на балконе.
Тепло в любое время года благодаря системе ''теплый пол'' в санузле и на балконе.
Квартира оснащена мебелью, что позволит вам заселиться и жить.
Развитая инфраструктура! Все необходимое для комфортной жизни находится в шаговой доступности: детские сады, школы, разнообразные магазины и сервисы.
Прекрасная транспортная доступность! Всего несколько минут пешком - и вы у метро ''Лухмановская'', что обеспечивает быстрое перемещение по городу.
Эта квартира - идеальный выбор для тех, кто ценит комфорт, качество и удобное расположение.
Не упустите свой шанс стать обладателем этого замечательного жилья!
Покупателю: -бесплатное юридическое сопровождение сделки. -квалифицированная помощь в получении ипотеки в ведущих банках, срок одобрения от 1 до 3 дней. -специальные скидки -индивидуальный подбор ипотеки с наименьшей ставкой и учетом госпрограмм, акций.